Réf. 86345384
3 pièces
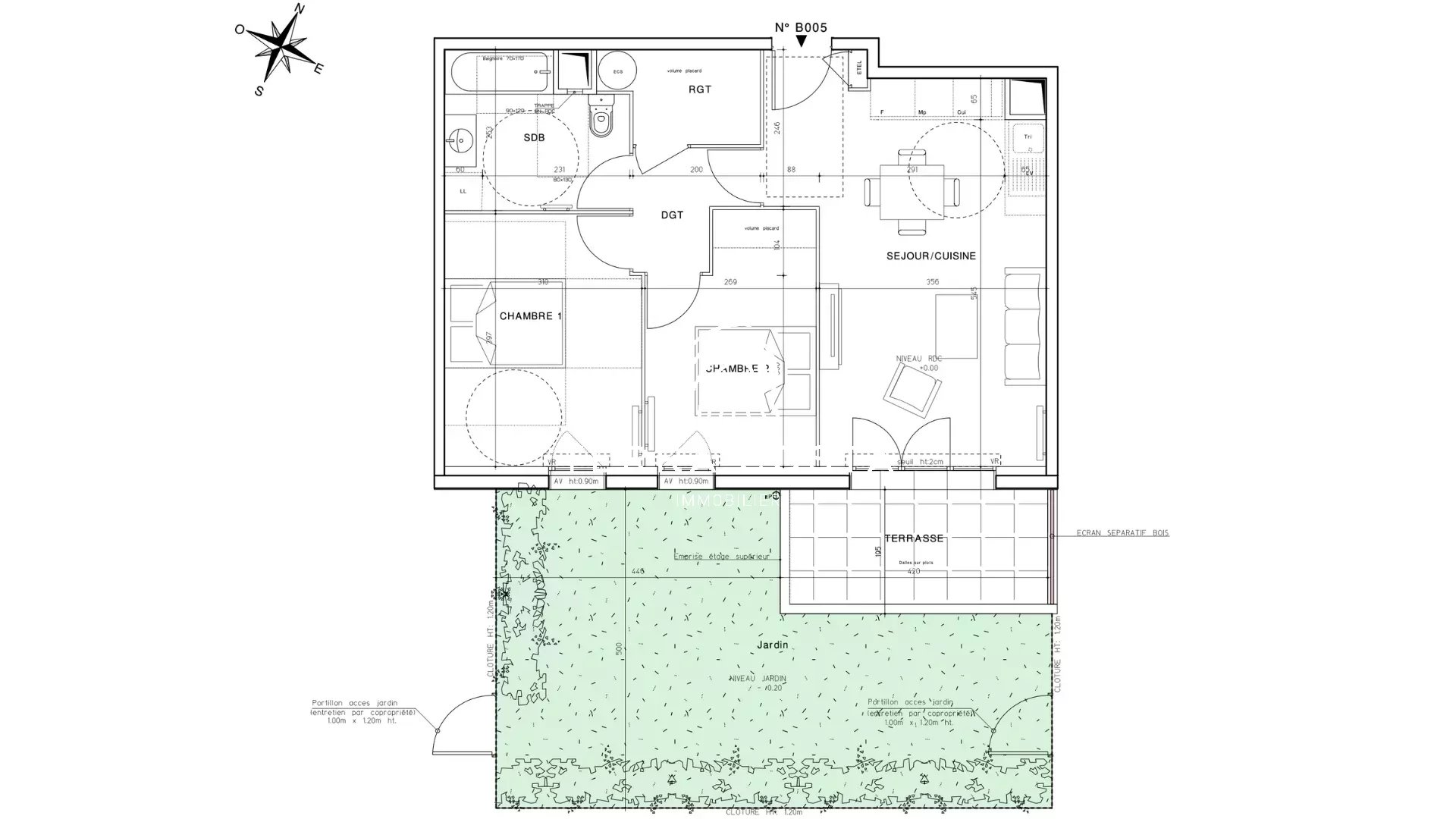
2 chambres
59 m²
214 000 €
Petite copropriété à l'architecture contemporaine inspirée des traditions landaises, dans un cadre de vie serein et paisible.
Adossée au futur Golf et à 13 min à vélo du centre-ville.
Prestations actuelles et de qualité répondant aux nouvelles normes énergétiques de construction.
Une entrée, un séjour/cuisine aménagée sur terrasse de 9m² plein sud vue dégagée sur le futur golf , deux chambres, une grande salle de bains/ toilettes.
2 places de parking extérieur.
Faibles charges de copropriété.
Aucun travaux à prévoir
Frais Notaire REDUITS
Risques et géorisques : Les informations sur les risques auxquels ce bien est exposé sont disponibles sur le site Géorisques : géorisques.gouv.fr
Pas d'informations disponibles
Vous souhaitez recevoir le dossier complet de ce bien et nous exposer votre recherche ?
Prenez contact directement avec votre agent dès maintenant ou remplissez directement le formulaire ci-dessous.


Découvrez notre service de chasse immobilière pour dénicher la pépite tant recherchée. Qui sait, votre nouveau chez-vous se trouve peut-être dans nos ventes confidentielles.

Terra Costa vous accompagne dans cette transition complexe qui est de vendre et d'acheter en même temps. Profitez d'un interlocuteur unique pour optimiser votre temps et réduire les risques.
Nous organisons cette transition pour vous. Demandez-nous une estimation et confiez-nous la vente de votre bien pendant que nous recherchons votre nouveau chez-vous."
Ce site est protégé par reCAPTCHA et les règles de confidentialité et les conditions d'utilisation de Google s'appliquent.